„Ein spannendes Neubauprojekt, zentrumsnah und unweit des Syratals.“
Das Projekt
In perfekter Lage in einer ruhigen Gegend nahe dem Stadtteil Neundorf liegt das QUARTIER am Syratal. Die moderne kubische Bauweise begeistert mit minimalistischem und geradlinigem Design auf allen Ebenen und verbindet Funktionalität mit Ästhetik auf perfekte Weise. Große Fenster, die das Sonnenlicht in die Wohnräume lassen und den Blick in die Natur ermöglichen, fügen sich optimal in die Architektur des Wohnprojektes ein. Jede der Wohneinheiten ist einzigartig undwohldurchdacht geschnitten und je nach Stockwerk stehen Balkon, Terrasse oder Eigengarten zur Verfügung.
Für all jene mit exklusiven Wünschen ist die innovative Wohnhausanlage das ideale Zuhause,denn das QUARTIER am Syratal bietet viele individuelle Möglichkeiten zum Leben und Wohnen: entspannte Rückzugsräume, großzügige Freibereiche und Platz für Familie und Freunde.
Quartier am Syratal
„Wir errichten einen exklusiven Neubau mit 13 Eigentumswohnungen – für Individualisten, die das Besondere schätzen. In perfekter Lage verfügt jedes Apartment über einen einmaligen Charakter. Die luxuriösen Penthouses faszinieren mit einer atemberaubenden Aussicht.“
René Meinel-Poller / Steffen Seidel
Bauherren
Exposé Quartier am Syratal
Ankommen
Der Vogtlandkreis ist ein Land-kreis im Südwesten des Freistaats Sachsen. Der Name stammt von den Vögten von Weida, welche zwischen dem 11. und 16. Jahrhundert regierten. Dabei ist das historische Vogtland nicht deckungsgleich mit dem Kreis, sondern liegt in Sachsen, Thüringen und zu kleineren Teilen in Bayern und Böhmen. Imposante Sehenswürdigkeiten sind unter anderem die Göltzschtalbrücke, die größte Ziegelsteinbrücke der Welt, mit insgesamt 98 Bögen. Die nahegelegene Talsperre Pöhl ist der drittgrößte Stausee Sachsens.
Plauen
Die Spitzenstadt Plauen liegt malerisch eingebettet im Tal der Weißen Elster im Südwesten von Sachsen. Die vielfältige Stadt liegt auf einer Höhe von 412 m über Meeresspiegel und ist mit ca. 65.000 Einwohnern die größte Stadt im Vogtland. Es gibt eine sehr gute Verkehrsinfrastruktur, die nächstgelegenen Großstädte können schnell über die Autobahnen erreicht werden. Plauen ist lebenswert, gastfreundlich, vielseitig und in bester zentraler Lage in Europa und Deutschland. Es befindet sich im Herzen Europas, wo im Vierländereck Tschechien, Bayern, Thüringen und Sachsen aufeinandertreffen. Begünstigt durch die touristisch relevante Lage im Herzen des Vogtlandes, einer attraktiv-restaurierten Altstadt, und weltbekannten ehemaligen Bürgern, wie z.B. »e.o.plauen«, wird Plauen zunehmend von Touristen als sehr attraktiv bewertet.
Ein Großteil des Plauener Zentrums ist von urbaner, großstädtischer Architektur des 19. Jahrhundertsgeprägt. Wahrzeichen der Stadt sind das Alte Rathaus mit seinem, kunstvollen Renaissance- Giebel und der astronomischen Kunstuhr sowie die sehenswerte
Johanniskirche. Auch die wild-romantische Weberhäuser, aus dem 17. Jahrhundert stammende Stadtquartiere am Mühlgraben,
welche als die älteste Häuserzeilen der Stadt gelten, sind einen Besuch wert. Die Friedensbrücke, auch Syratalviadukt, ist die Brücke mit einem der größten steinernen Brückenbögen weltweit. Bei einem Bummel durch die historische Altstadt kann man, neben den zahlreichen
Sehenswürdigkeiten, auch enge Gassen und bezaubernde kleine Geschäfte entdecken. Genuss pur versprechen urige Altstadtlokale, kleine Cafés und gemütliche Biergärten.
Stadtpark Syratal
Das Syratal liegt zentrumsnah im Herzen von Plauen.
Den größten Teil der Fläche nimmt das gleichnamige
Landschaftsschutzgebiet ein, zu dem auch der
18 Hektar große und mehr als hundert Jahre alte unter
Denkmalschutz stehende Stadtpark gehört. Mit zahlreichen Laub- und Nadelbaumarten sowie großen Wiesenbereichen ist er Plauens grünes Herz und lädt zum Verweilen ein.
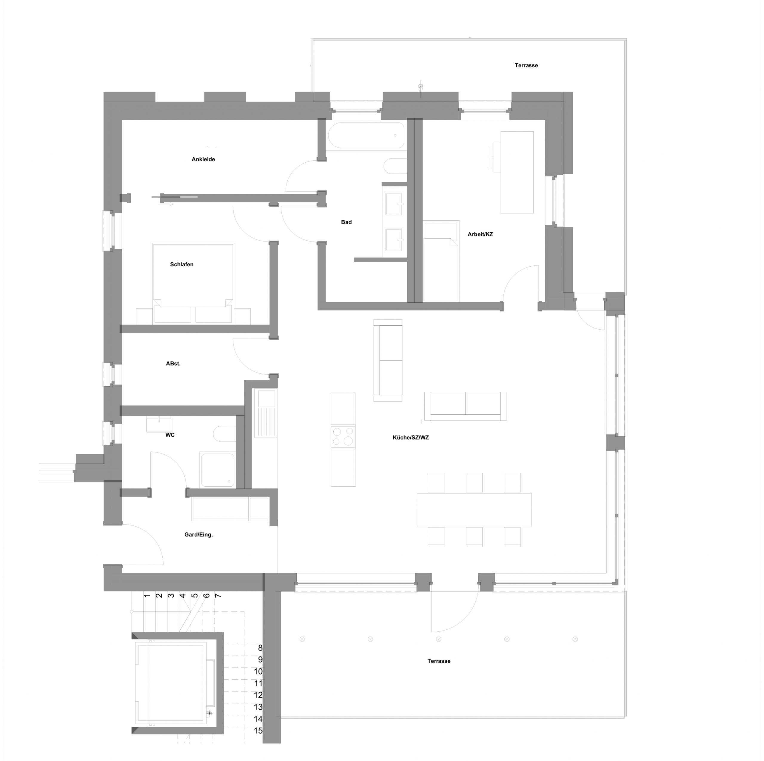
Penthouse Q.12 – 143,31m²
- Schlafen /Ankleide: 21,02m²
- Küche / Wohnen: 58,52m²
- Flex (Arbeiten / Kind / Gäste) Bad: 16,18m²
- WC: 2,42m²
- Diele: 6,11m²
- Abstell / HWR: 4,91m²
- Balkon:21,86m²
- Tiefgarage: vorhanden
- E-Ladestation: vorhanden
Appartment Q.04 – 136,33m²
- Schlafen /Ankleide:19,58m²
- Küche / Wohnen: 55,93m²
- Flex (Arbeiten / Kind / Gäste) Bad: 13,38m²
- Bad: 8,66m²
- WC: 4,98m²
- Diele: 7,01m²
- Abstell / HWR: 6,06m²
- 2 Terassen (7,89 + 12,84m²): 20,73m²
- Tiefgarage: vorhanden
- E-Ladestation: vorhanden
Kontakt
Sandra Heß
Immobilienmaklerin
in Vertretung der LBS-Immobilien GmbH Sparkassen-Immobilien
Marktstr. 17 | 08523 Plauen
Telefon: 03741 / 123-6535
E-Mail: sandra.hess@sparkasse-vogtland.de
im Auftrag der
CEAL Immo GmbH & Co. KG
Zum Plom 5 | 08541 Neuensalz










